Chargement...

PROJET POUR UN PAVILLON INDIVIDUEL A ENERGIE POSITIVE BEPOS

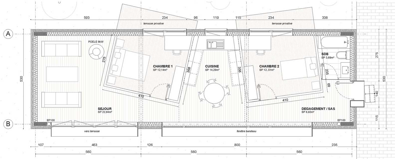
Ce projet de maison à énergie positive pour famille de 3 personnes a éte pensé à travers une conception globale pour traduire le programme en décrivant une surface de façades minimum et des apports solaires maximisés.

L'implantation de la maison et sa géométrie lui sont favorables.

Elles permettent de réduire la prise au vent de par sa protection en fond de parcelle et d'assurer une exposition solaire optimale.

L'ossature bois de la maison est assurée par l'intermédiaire de 2 portiques en épicéa assemblés laméllé-collé et 4 fermes intermédiaires; les bardages de façade et toiture sont réalisés en Mélèze de Sibérie. Les garnissages thermiques sont réalisés à l'aide de panneaux semi-rigide de laine de chanvre disposés en lais croisés totalisant une épaisseur finie de 300mmE.

Les chéneaux sont matérialisés par des boîtes à eau intégrés dans la toiture et les descentes d'eaux pluviale sont intégrées à même l'épaisseur des murs.

La production d'eau chaude sanitaire est assurée par un ensemble de panneaux solaire installés sur le pan SO de la toiture.

Cette maison est conçue pour être mise en oeuvre sans appareillage lourds et coûteux. L'ensemble des éléments constructifs est calibré pour être assemblable par 4 indidus moyennement qualifiés en 1 semaine.

Le coût effectif de la construction ne devrait pas excéder 200k€ HT pour une surface de plancher de 80m2 soit 2500€/m2SP HT.




INFORMATIONS
  • Date :2015
  • Lieu :-
  • Catégorie :Commande privée
  • Coût :200 k€

aerostudio architectes aerostudio architectes

Autres Réalisations :

  • Téléphone : +33 1 45 87 04 90
  • Mobile : +33 6 72 55 72 38
  • Email : contact@aerostudio.fr